★新着情報★ 
 
            完全予約制 夜の貸し切り展示場見学☆
夜の展示場を貸し切りしませんか?
 
              
 
                
 
               完全予約制で夜の展示場を貸し切りでご案内させていただきます。
・仕事終わりに見学したい方。
・他のお客様を気にせずに見学したい方。など
ぜひこの機会に夜の展示場を体感してみませんか?
ご予約いただき着次第、貸し切りとさせていただきます。
秋の夜長に特別な積水ハウスをご体感ください。
スタッフ一同、皆様のご来場を心よりお待ちしています。
👉 ご予約はこちら
https://www.sekisuihouse.co.jp/event/detail.php?id=b500005-2510-10021&p=
積水ハウス 【QUOカード5000円分】来場予約キャンペーン
WEB予約でQUOカード5,000円分プレゼント!
 
             積水ハウス㈱イズ松茂展示場では、
WEBからご予約のうえご来場いただいたお客様に、QUOカード5,000円分をプレゼント!
事前のご質問にも丁寧にお答えいたしますので、安心してご来場いただけます。
また、混雑時でもお待たせすることなくご案内可能です。
この機会にぜひ、WEB予約をご利用ください!
 
👉 ご予約はこちら
 
 
🎁キャンペーン対象条件:
- 積水ハウスにお客様登録のない方
- 新築をご計画中の方
- 建築予定地(または建築地)が徳島県内の方
※QUOカードは、受領書と引き換えに後日お渡しいたします。
 
 
 
                
 
               個性際立つ邸宅「イズ・ロイエ」
工法・構造/鉄骨軸組工法
美しさと強さを兼ね備えた
ダインコンクリートの家
 
            個性際立つ邸宅「イズ・ロイエ」
工法・構造/鉄骨軸組工法
 
               遮るもののない伸びやかな視界。8メートルの大開口サッシがこれまでにない心地よさを提供する「イズ・ロイエ」ならではの緑のリビング。室内とウッドデッキがフラットにつながる「スローリビング」は、ワイドな開放感と心地よい自然との一体感を感じさせてくれます。どこか懐かしく、どこまでも心地よい、スローリビングのある暮らしをご体感ください。 
               
  
               
 
                
                 
                  
                  
 
                   
                
               
地震の際に大きな働きをするブレースを組み込んだ耐力壁フレームや梁、独立柱などによる高い「耐震性」とともに、邸別設計を可能にする高い「設計の自由度」が特徴です。また、強度と耐久性、防耐火性を確保した最高級外壁材「ダインコンクリート」の中でも彫りの深さが際立つ「シェードボーダー」を採用し、美しさと高い機能性を兼美しました。
  
               
 
                
                 
                  
                  
 
                   
                 
                
                 
                  
                  
 
                   
                
               
  
              
 
              
 
                地震の際に大きな働きをするブレースを組み込んだ耐力壁フレームや梁、独立柱などによる高い「耐震性」とともに、邸別設計を可能にする高い「設計の自由度」が特徴です。また、強度と耐久性、防耐火性を確保した最高級外壁材「ダインコンクリート」の中でも彫りの深さが際立つ「シェードボーダー」を採用し、美しさと高い機能性を兼美しました。
 
 
                 
 
                 
 
                 
 
                
 
 
                
 
               
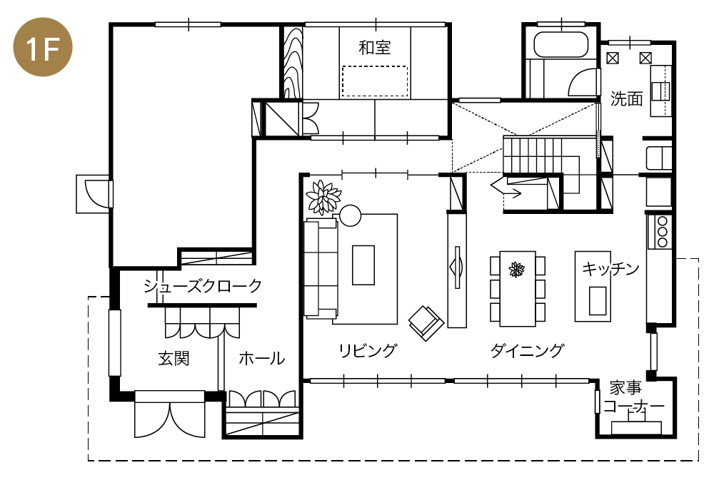
                リビング 
              
 
             セカンドリビング
                ダイニング 
              
 
              
              詳しい内容に関しましては、出展企業にお問い合わせいただくか、出展企業ホームページにてご確認ください。 
             
 
             
 
               
 
                    
 
                    
 
                  
 
                  
 
                  
 
                  
 
                  
 
                  
 
                  
 
                  
 
           
 
           
 
          